NEUBAUPROJEKT LANGE 30 – Maisonette mit 4 Zimmern, 2 Bädern, Dachloggia und einzigartigem Wohngefühl

Diese außergewöhnliche Maisonette-Wohnung vereint Großzügigkeit mit architektonischer Raffinesse über den Dächern der Stadt. Offene Raumstrukturen, viel Tageslicht und stilvolle Details verleihen der Wohnung eine besondere Atmosphäre. Der Aufzug sorgt für einen bequemen Zugang vom Kellergeschoss bis zur Wohnungsebene.
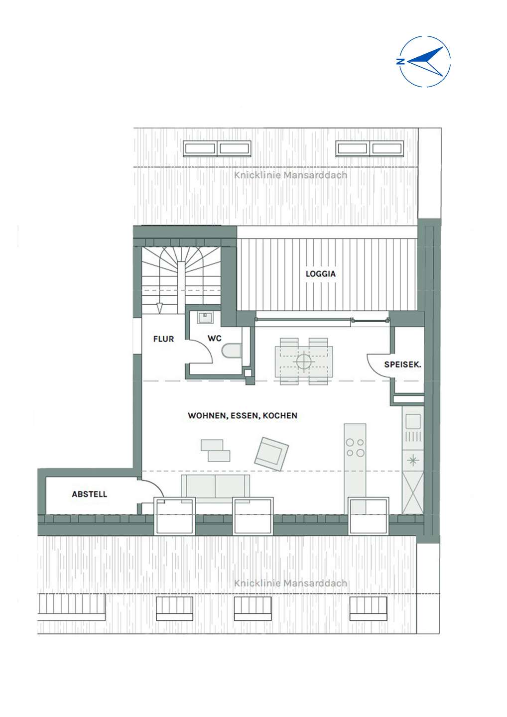
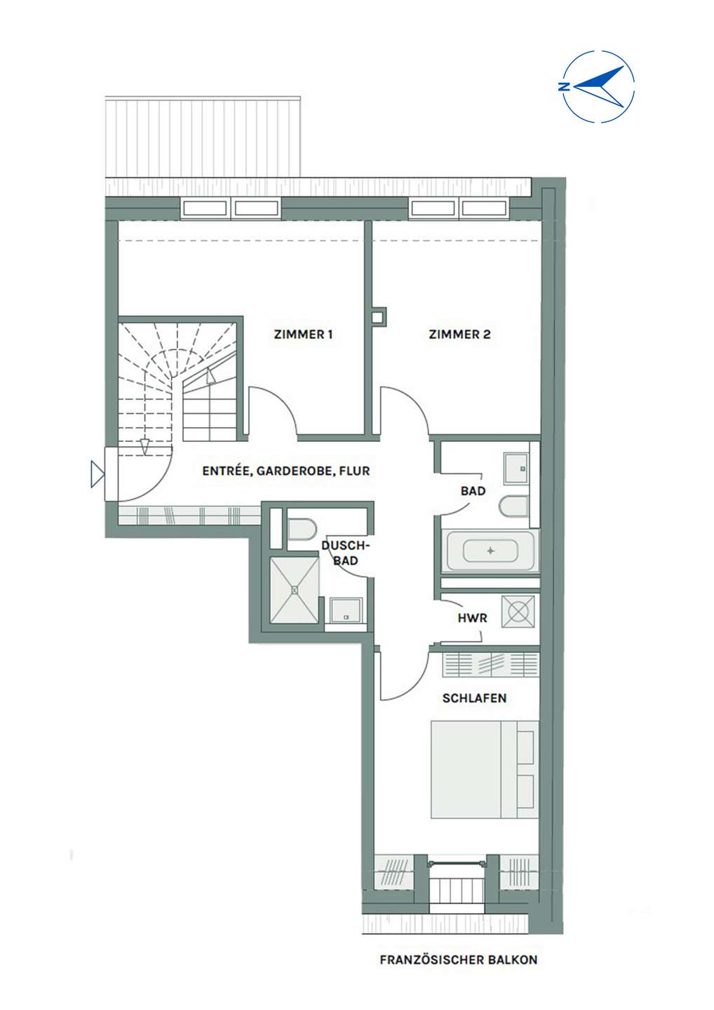
Die Dachgeschosswohnung erstreckt sich über zwei Ebenen und insgesamt 100,5 m² Wohnfläche. Im Untergeschoss befinden sich zwei individuell nutzbare Zimmer sowie das Schlafzimmer mit Zugang zu einem französischen Balkon. Das Badezimmer ist mit einer Wanne und edlem Marken-Sanitärinventar ausgestattet, ergänzt durch ein Gästebad mit bodengleicher Dusche. Ein Hauswirtschaftsraum mit Waschmaschinen-Anschluss bietet zusätzlichen Stauraum und Funktionalität. Im Obergeschoss öffnet sich der großzügige Wohn- und Kochbereich mit Dachflächenfenstern, die für eine helle, freundliche Atmosphäre sorgen. Von hier aus gelangt man auf die hofseitigen Dachloggia, die den Wohnraum ins Freie erweitert – perfekt für erholsame Stunden an der frischen Luft. Eine Speisekammer, ein Abstellraum und ein Gäste-WC runden die Ebene ab.
Feine Materialien unterstreichen den Anspruch an Qualität: Echtholz-Parkett aus Eiche in den Wohnräumen, Feinsteinzeug-Fliesen in Bad und Küche sowie glattgespachtelte Wände sorgen für ein harmonisches Gesamtbild. Eine Fußbodenheizung spendet behagliche Wärme, Fenster mit Wärme- und Schallschutzverglasung und Außenjalousien sichern Ruhe und Privatsphäre. Zur weiteren Ausstattung zählen eine Video-Wechselsprechanlage, ein Hauswirtschaftsraum mit Waschmaschinenanschluss, ein Kellerabteil sowie Fahrradstellplätze im Hof. Die Versorgung des Hauses erfolgt effizient über Fernwärme. Ein Zuhause, das durchdachte Funktionalität, ästhetisches Design und ein Höchstmaß an Wohnqualität vereint. Bei Bedarf kann ein PKW-Stellplatz in der hauseigenen Tiefgarage erworben werden (Kaufpreis 29.000,- €). Jeder Tiefgaragenstellplatz ist mit einer E-Ladestation ausgestattet und bietet damit zeitgemäßen Komfort für Elektromobilität.
Leipzig zählt mit zu den dynamischsten Wohnungsmärkten Deutschlands – mit wachsender Nachfrage, hoher Lebensqualität und starken Zukunftsaussichten. Gern beraten wir Sie persönlich zur Vermietbarkeit und Standortentwicklung.
Mit geplanter Fertigstellung Ende 2027 entsteht hier ein außergewöhnliches Neubauensemble, das zeitlose Architektur und modernen Wohnkomfort vereint.
Lage & Umgebung
Die Immobilie liegt im begehrten Stadtteil Zentrum-Ost, nur wenige Gehminuten von der Innenstadt entfernt – eine der begehrtesten Wohnlagen der Stadt. Hier verbinden sich urbanes Leben, historische Architektur und modernes Wohngefühl auf besondere Weise.
Das Umfeld besticht durch seine historische Gründerzeitarchitektur, liebevoll sanierte Fassaden und das charakteristische Flair eines gewachsenen Viertels, das Kultur, Kreativität und Lebensqualität verbindet. Nur wenige Schritte entfernt laden stilvolle Cafés, kleine Läden oder die weitläufigen Grünanlagen rund um den Lene-Voigt-Park zum Entdecken und Verweilen ein. Einkaufsmöglichkeiten für den täglichen Bedarf, Ärzte, Schulen und Kindertagesstätten sind bequem erreichbar.
Die exzellente Anbindung unterstreicht die Lage zusätzlich: Hauptbahnhof, Augustusplatz und das Leipziger Zentrum sind in wenigen Minuten erreichbar, während die Anbindung an B2 und A14 kurze Wege in sämtliche Richtungen garantiert.
Damit bietet die Lage eine harmonische Balance zwischen urbaner Dynamik und erholsamer Rückzugsmöglichkeit inmitten von Leipzig. Ein Zuhause für alle, die das Besondere suchen.
Ausstattung
– Maisonette-Stil
– französischer Balkon
– Dachloggia
– offene Wohnküche
– Badezimmer mit Wanne
– Gäste-Bad mit ebenerdiger Dusche
– separates WC
– hochwertiges Badinventar von Markenherstellern
– Hauswirtschaftsraum mit WAMA-Anschluss
– Speisekammer
– Abstellraum
– Echtholz-Parkettboden (Eiche natur)
– Feinsteinzeug-Fliesen in Küche und Bad
– Fußbodenheizung
– glattgespachtelte Wände
– Fenster mit Wärme- und Schallschutz
– Außen-Jalousien an allen Fenstern
– Video-Wechselsprechanlage
– Aufzug
– Kellerabteil
– Fahrrad- und Müllstellplätze im Hof
– optional Kauf PKW-Stellplatz möglich (Tiefgarage)
– Fernwärme
Sonstiges
Ihr Ansprechpartner zu diesem Objekt:
Jetzt anfragen
Objektanfrage
Details
Ausstattungsmerkmale
Energienachweis
Weitere beliebte Objekte





















