WERTERHALT IM FOKUS // Voll vermietetes Mehrfamilienhaus mit 8 Einheiten und nachhaltiger Substanz

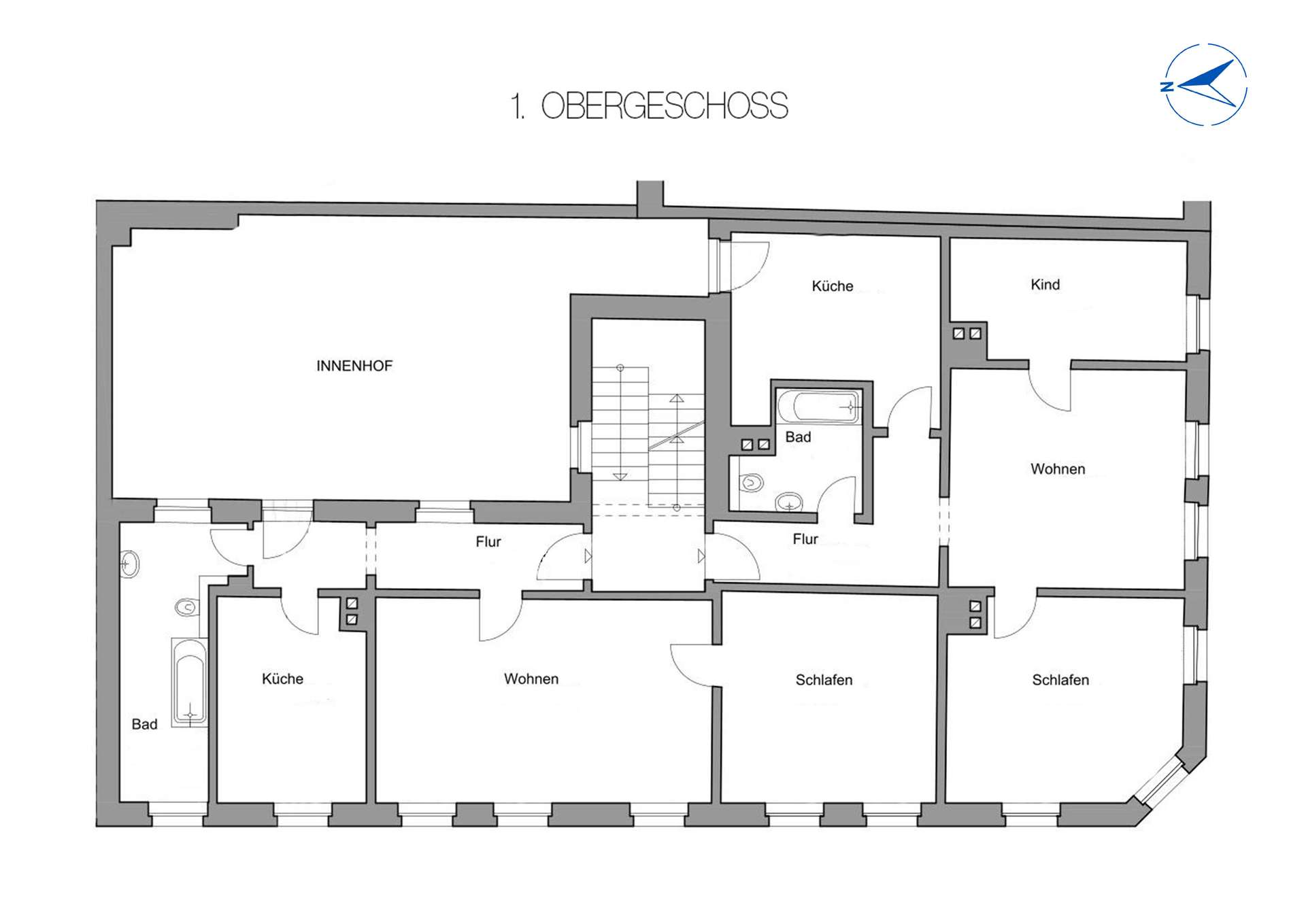
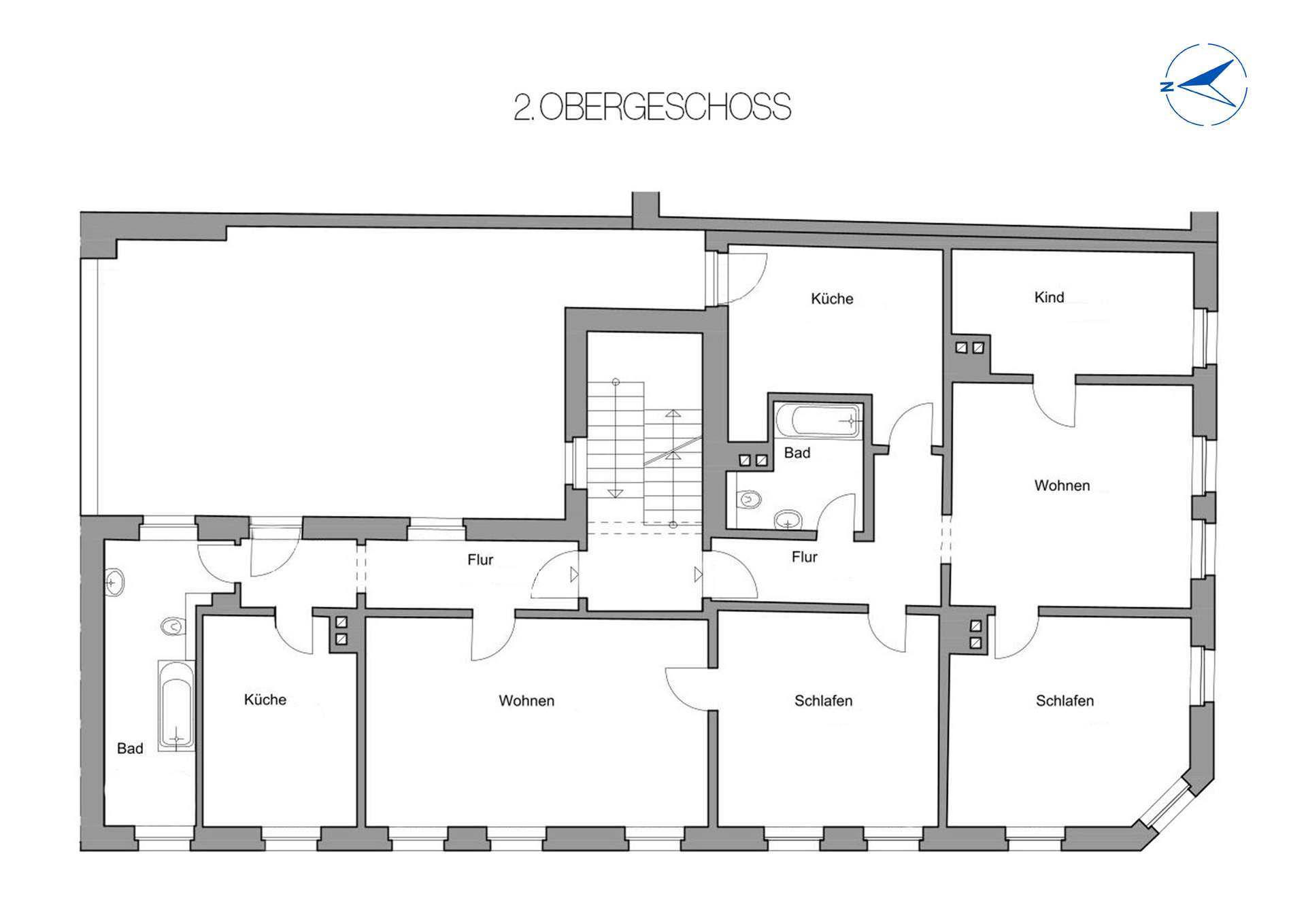
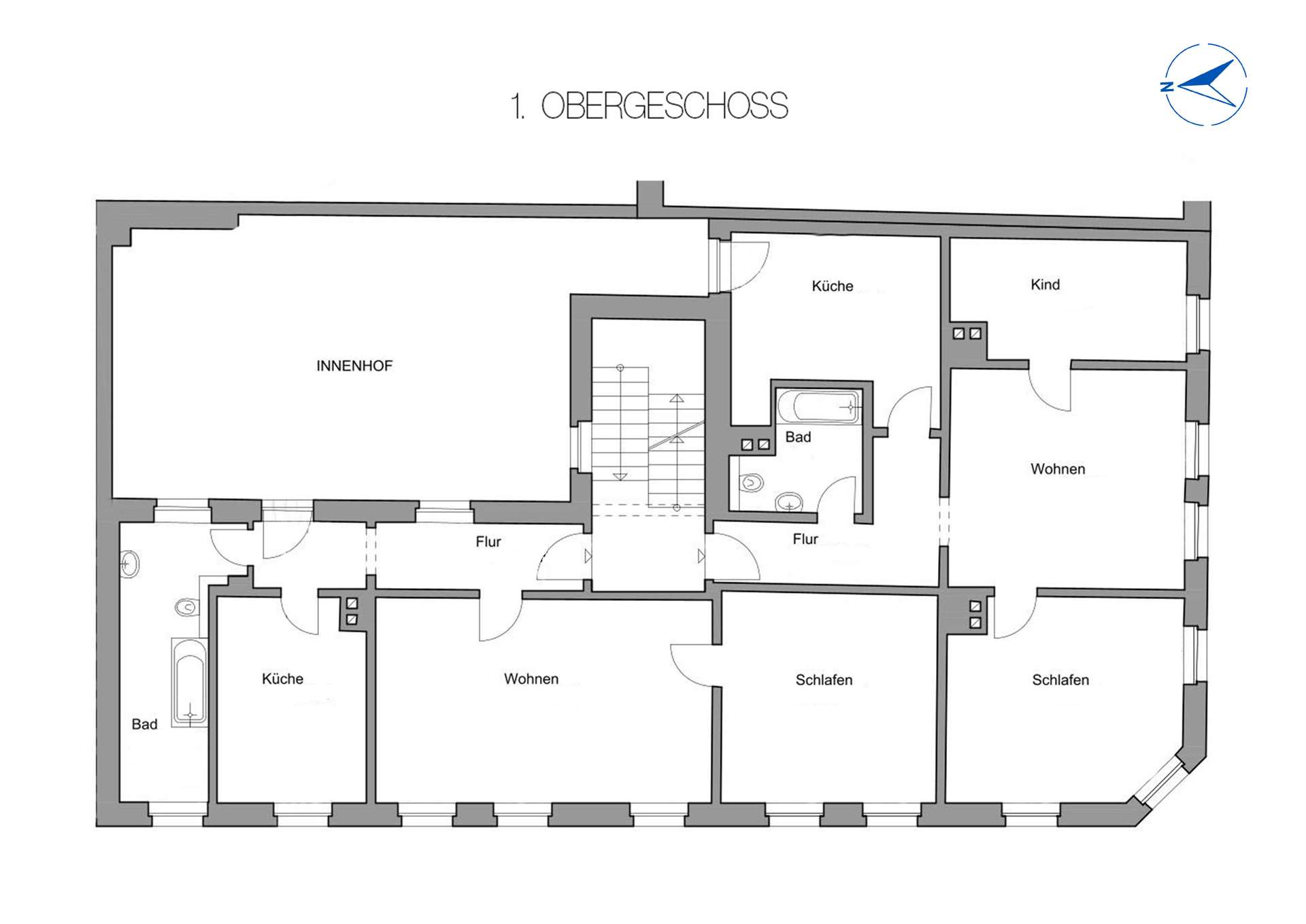
Zum Verkauf steht ein voll vermietetes Mehrfamilienhaus aus dem Jahr 1920 mit einer Gesamtwohnfläche von ca. 523 m² auf einem 242 m² großen Grundstück. Die nachhaltig instand gehaltene Immobilie umfasst insgesamt acht Wohneinheiten, die sich gleichmäßig auf das Erdgeschoss, das erste und zweite Obergeschoss sowie das Dachgeschoss verteilen. Pro Etage befinden sich jeweils zwei Einheiten.
Die Wohnungsgrößen variieren zwischen ca. 39 m² und 82 m² und bieten gut geschnittene 2- bis 4-Raum-Wohnungen. Teilweise verfügen die Wohnungen über Tageslichtbäder, ausgestattet mit Badewanne oder Dusche. Zwei Wohnungen im ersten und zweiten Obergeschoss sind zusätzlich mit Balkonen zur Hofseite ausgestattet und erhöhen die Wohnqualität nachhaltig. Die Bäder verfügen über moderne Fliesen sowie zeitgemäße Sanitäranlagen und Badeausstattungen. Die Wohnräume sind mit Laminat- und Parkettböden ausgestattet, die Wände sind verputzt und glatt gespachtelt.
Das Mehrfamilienhaus wurde umfassend saniert, unter anderem im Jahr 1999 sowie erneut im Jahr 2021. In den vergangenen Jahren wurden kontinuierlich weitere Sanierungs- und Instandhaltungsmaßnahmen durchgeführt, sodass sich das Objekt in einem sehr gepflegten und zeitgemäßen Zustand präsentiert. Im Zuge der Modernisierungen wurden unter anderem hochwertige, dreifachverglaste Schüco-Fenster eingebaut, neue Heizkörper installiert, Bodenbeläge erneuert sowie Türen ausgetauscht. Auch die Elektroinstallation wurde erneuert, ebenso wie die Installation von Videosprechanlagen, was sowohl den Wohnkomfort als auch die Sicherheit erhöht. Die zentrale Heizungsanlage wurde 2015 erneuert und arbeitet mit moderner Gas-Brennwerttechnik. Das Kellergeschoss wurde trockengelegt und bietet Abstellräume für die Mieter. Darüber hinaus steht ein gemeinschaftlich nutzbarer Innenhof zur Verfügung.
Sämtliche Wohneinheiten sind vermietet und erwirtschaften derzeit jährliche Mieteinnahmen in Höhe von 44.590,44 €, was einer Brutto-Ist-Rendite von ca. 6,86 % p. a. entspricht.
Lage & Umgebung
Willkommen in Weißenfels, einem bezaubernden Ort mit einer faszinierenden Geschichte und einer malerischen Lage. Das historische Gebäude, verwinkelten Gassen und gepflegten Plätze verleihen der Stadt eine einzigartige Atmosphäre.
Die Immobilie befindet sich in einer ruhigen und dennoch zentralen Lage, die Ihnen eine perfekte Balance zwischen urbanem Komfort und natürlicher Schönheit bietet. Nur wenige Gehminuten entfernt finden Sie alle Annehmlichkeiten des täglichen Bedarfs wie Einkaufsmöglichkeiten, Restaurants, Schulen und öffentliche Verkehrsmittel.
Die alte Barockstadt ist die bevölkerungsreichste Stadt im Burgenlandkreis und liegt nur ca. 30 km südwestlich von Leipzig. Dank dieser günstigen Verkehrslage ist die Region um Weißenfels - wie auch die Stadt selbst - mit ihren wieder erstarkten Industriestrukturen und einer hochproduktiven Landwirtschaft, ein begehrter Wirtschafts- und Wohnstandort. Mit einer schnellen Anbindung an die Autobahn und das öffentliche Verkehrsnetz sind Sie bestens vernetzt. In kürzester Zeit erreichen Sie umliegende Städte und Sehenswürdigkeiten.
Die Region rund um Weißenfels ist von einer atemberaubenden Naturlandschaft umgeben. Sanfte Hügel, idyllische Flusstäler und weitläufige Wälder bieten zahlreiche Möglichkeiten für erholsame Spaziergänge, Fahrradtouren und andere Outdoor-Aktivitäten.
Ausstattung
Mehrfamilienhaus mit 8 Wohneinheiten:
- Baujahr ca. 1920
- 2- bis 4-Raum-Wohnungen (39–82 m²)
- ca. 523 m² Wohnfläche
- voll vermietet
- Sanierungen: 1999 & 2021
- zentrale Gas-Brennwertheizung (2021)
- dreifachverglaste Schüco-Fenster
- Laminat- und Parkettböden
- moderne (Tageslicht-)Bäder mit Wanne oder Dusche
- Videosprechanlagen
- Balkone im 1. und 2. Obergeschoss (hofseitig)
- Kellergeschoss mit Abstellräumen
- gemeinschaftlich nutzbarer Innenhof
- Grundstücksgröße: 242 m²
Sonstiges
Ihr Ansprechpartner zu diesem Objekt:
Jetzt anfragen
Objektanfrage
Details
Ausstattungsmerkmale
Energienachweis
Weitere beliebte Objekte




















